Vítáme vás na stránkách našeho bytového projektu! Tento prostor je k dispozici k podnájmu, a v následujících sekcích vám nabízíme podrobný popis bytu.

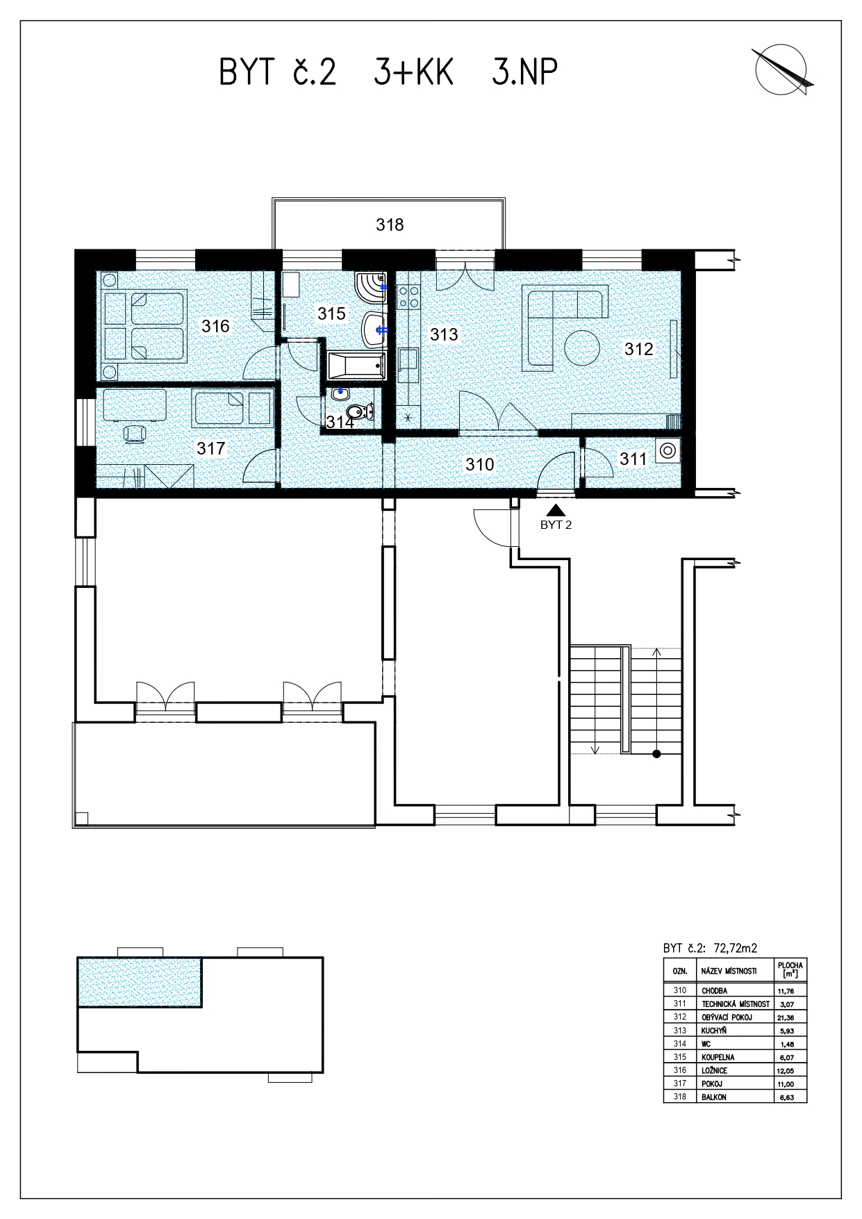
Jedná se o byt charakteru 3+KK s balkónem , je vybaven kuchyňskou linkou , přípojkou internetu , vytápění je centrální podlahové . Byt má samostatné měření spotřeby všech energii a vody ( teplé i studené - ohřev vody je centrální ) .

Součástí podnájmu je jedno rezervované parkovací stání za domem a sklepní koje . 

Následuje plánek bytu, který ukazuje inteligentní dispozici jednotlivých místností. Uvidíte, jak je byt efektivně uspořádán, aby poskytoval maximální pohodlí a prostor pro život. Věříme, že si tento prostor zamilujete, a navštívíte nás co nejdříve. 

Fotografie bytu vám poskytne představu o jeho současném stavu a vybavení. Rádi bychom ukázali, jak byt vypadá naživo, abyste si mohli lépe představit svůj budoucí domov. Všechna zařízení jsou moderní a pečlivě vybraná.  

Před podpisem podnájemní smlouvy vám rádi poskytneme veškeré potřebné informace, včetně podmínek a pravidel, která se vztahují na pronájem. Naší snahou je vytvořit transparentní a přátelské vztahy s našimi nájemníky. 

Cena podnájmu je 17000 Kč , energie dle počtu osob (byt je určen pro maximálně 5 osoby)